Farm & Cork
Commercial Studio
Programs: Revit, Enscape, Photoshop, Illustrator, InDesign
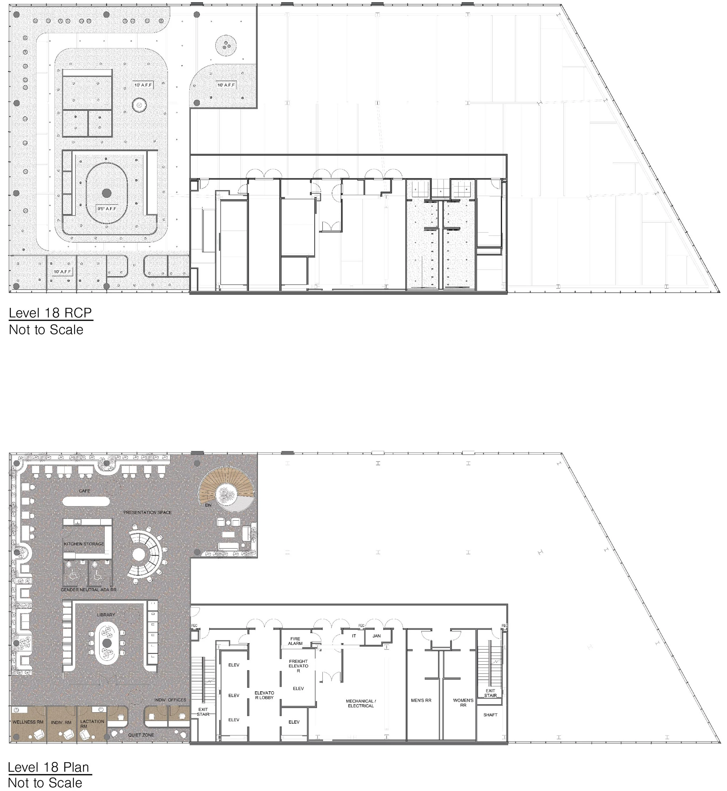
Farm to Cork is a meal delivery service offering farm-to-table meals with specialized wine pairings. The company emphasizes the importance of sustainability, transparency, and customer satisfaction. The meals are tailored to various dietary needs and preferences. Through transparent communication, the company aims to educate customers about the origins of their food and wine, fostering a deeper connection with the products they consume. The workspace design incorporates a warm color palette with rich wood, textured limestone, and terrazzo. Through the utilization of natural materials, the design speaks to the company’s sustainability mission and creates an inviting space for guests and team members.

